Login

 
Seniorenwoning
Op Goeree 18, Callantsoog
Huurprijs: € 713,73 per maand
Overgebleven tijd om te reageren
6 dagen
Aantal reacties
16
Uw positie
Onbekend
Type
Seniorenwoning
Slaapkamers
2
Bouwjaar
1972
Oppervlakte
50.2 m2
housePhoto
housePhoto

Voorwaarden en/of vereisten

Eisen aan de leeftijd
Voor deze woning geldt een minimale, of maximale leeftijd
Minimaal 65 jaar
Eisen aan het inkomen
Deze woning heeft aanvullende eisen aan uw inkomen
Maximaal € 51.537,00
Woningkenmerken
Berging extern
Gelijkvloers
Open keuken
Tuin
Verwarming & energie
Elektrisch koken
CV combiketel
Extra’s
Thermostatische douchekraan

Beschrijving

Voor eenpersoonshuishouden is het maximale inkomen € 51.537 en voor meerpersoonshuishoudens is het maximaal inkomen € 56.910.

Exclusief huurverhoging per 1 juli 2026

Advertentie
Advertentienummer: 2026041613
Methode Toewijzen: Zoekrecht
Verwachte verhuurdatum: 24 april 2026
Reageren t/m: 22 april 2026
Corporatie:
Details
Betreft: Seniorenwoning
Type woning: Seniorenwoning
Energielabel: Energieklasse D
Kosten
Huurprijs (netto): € 691,39
Servicekosten: € 22,34
Huurprijs (bruto): € 713,73
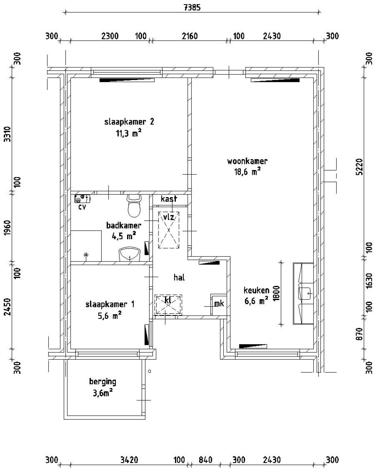
Indeling
Slaapkamer-1: 5.60 m2
Slaapkamer-2: 11.30 m2
Woonkamer-1: 18.60 m2
Keuken-1: 6.60 m2
Badkamer-1: 4.50 m2
Berging-1: 3.60 m2

Totale oppervlakte: 50.20 m2


Elektrisch koken 

Elektrisch koken van toepassing: koken met gas niet mogelijk.


Aanvragen inkomensverklaring

Indien u in aanmerking komt voor een huurwoning heeft u een inkomensverklaring nodig van de Belastingdienst van uzelf en indien van toepassing van uw partner over het jaar 2024/2025 of een definitieve of voorlopig aanslagbiljet over het jaar 2024/2025.

Om teleurstelling bij toewijzing te voorkomen adviseren wij u in verband met de levertijd nu al deze inkomensverklaring aan te vragen bij de Belastingdienst tel. 0800-0543. Bij toewijzing wordt geen uitstel verleend voor het aanvragen van een inkomensverklaring.


 
 
REAGEREN
U moet eerst inloggen om te kunnen reageren. Heeft u nog geen account?
Schrijf u dan snel in.