Onderhoudsmelding
De ochtend van dinsdag 7 april zal er onderhoud uitgevoerd worden op deze site.
Mogelijk werken links niet meer en zult u opnieuw moeten inloggen.
Ververs eventueel de site.
Als u deze melding niet meer ziet, zijn de werkzaamheden afgerond.
 

Login

 
Appartement 1e Etage met lift
Gerbrands Scheltesstraat 61, Den Helder
Huurprijs: € 853,98 per maand
Overgebleven tijd om te reageren
6 dagen
Aantal reacties
29
Uw positie
Onbekend
Type
Appartement 1e Etage met lift
Slaapkamers
2
Bouwjaar
2011
Oppervlakte
67.3 m2
housePhoto
housePhoto

Voorwaarden en/of vereisten

Aantal personen in uw huishouden
Voor deze woning geldt een minimale of maximale huishoudgrootte. Voor uw huishoudgrootte tellen u, uw eventuele partner, uw eventuele kinderen, en eventuele andere inwonende bewoners mee.
Maximaal 3 person(en)
Eisen aan de leeftijd
Voor deze woning geldt een minimale, of maximale leeftijd
Minimaal 65 jaar
Woningkenmerken
Levensloopbestendig
Balkon
Berging intern
Gelijkvloers
Lift
Open keuken
Verwarming & energie
Elektrisch koken
CV combiketel
Extra’s
Videofoon
Thermostatische douchekraan
Vrijhangend toilet
Extra toilet in badkamer

Beschrijving

Advertentie
Advertentienummer: 2026040712
Methode Toewijzen: Zoekrecht
Verwachte verhuurdatum: 29 april 2026
Reageren t/m: 13 april 2026
Corporatie:
Details
Betreft: Appartement 1e Etage met lift
Type woning: Appartement 1e Etage met lift
Energielabel: Energieklasse A
Kosten
Huurprijs (netto): € 790,28
Servicekosten: € 63,70
Huurprijs (bruto): € 853,98
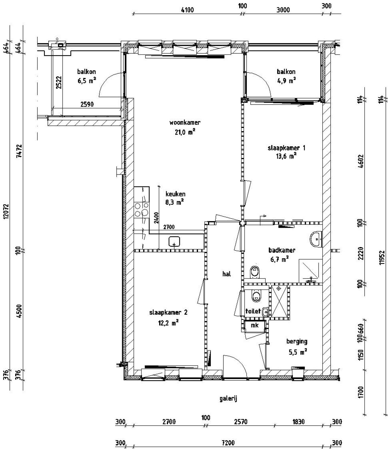
Indeling
Slaapkamer-1: 13.60 m2
Slaapkamer-2: 12.20 m2
Woonkamer-1: 21.00 m2
Keuken-1: 8.30 m2
Badkamer-1: 6.70 m2
Berging-1: 5.50 m2

Totale oppervlakte: 67.30 m2


Elektrisch koken

Elektrisch koken van toepassing: koken met gas niet mogelijk.

Voorkeur 65 jaar of ouder
Deze woning wordt bij voorkeur verhuurd aan een kandidaat van 65 jaar of ouder. Kandidaten jonger dan 65 jaar kunnen wel reageren maar komen op een wachtlijst. Personen op de wachtlijst worden geselecteerd als er geen kandidaten van 65 jaar of ouder beschikbaar zijn.


Aanvragen Inkomensverklaring

Indien u in aanmerking komt voor een huurwoning heeft u een inkomensverklaring nodig van de Belastingdienst van uzelf en indien van toepassing van uw partner over het jaar 2024/2025 of een definitieve of voorlopig aanslagbiljet over het jaar 2024/2025.

Om teleurstelling bij toewijzing te voorkomen adviseren wij u in verband met de levertijd nu al deze inkomensverklaring aan te vragen bij de Belastingdienst tel. 0800-0543. Bij toewijzing wordt geen uitstel verleend voor het aanvragen van een inkomensverklaring.


 
 
REAGEREN
U moet eerst inloggen om te kunnen reageren. Heeft u nog geen account?
Schrijf u dan snel in.